Projekte
2024 | Cuxhaven
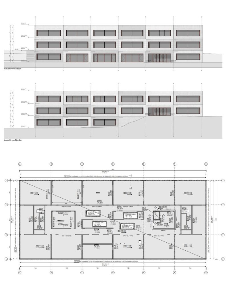
Neubau Duhner Speicher
Mauerwerks- und Stahlbetonkonstruktion, Holzbau-Pfettendächer, 5.000 m² BGF
- Position: Tragwerksplaner
- Leistungen: LPH 1–4
- Bauherr: Duhner Projektbau GmbH
- Entwurf: Tiller & de Buhr in Partnerschaft mbB
2025 | Regensburg
Neubau Melanchtonheim
Stahlbeton-Holz-Hybridkonstruktion, 20.000 m² BGF
- Position: Tragwerksplaner
- Leistungen: Bewehrungsplanung
- Bauherr: Protestantische Alumneumsstiftung
- Entwurf: Neumann & Heinsdorff Architekten Partnerschaftsgesellschaft MBB
2025 | Dettmannsdorf
Erweiterung und Umbau der Ev. Schule Dettmannsdorf
Stahlbeton- und Holz-Stahl-Hybridkonstruktion, 4.100 m² BGF
- Position: Tragwerksplaner
- Leistungen: Bewehrungsplanung
- Bauherr: Ev. Bildungscampus Dettmannsdorf gGmbH
- Entwurf: mrschmidt Architekten GmbH
2024 | Tornesch
Sanierung Feuerwehrzentrale Fahrzeughalle 2
Stahlhallen-Konstruktion, 470 m² BGF
- Position: Tragwerksplaner
- Leistungen: LPH 1–4
- Bauherr: Kreis Pinneberg
- Entwurf: konzeptplan GmbH & Co.KG
2023 | Hamburg
Sanierung und Neubau Notunterkunft PIK AS
Stahlbetonkonstruktion, 2.150 m² BGF
- Position: Tragwerksplaner
- Leistungen: Erstellung der Genehmigungsstatik
- Bauherr: Fördern & Wohnen AöR
- Entwurf: APB. Schneider Andresen Pommée Architekten und Stadtplaner PartG mbB
2023 | Berlin-Tempelhof
Neubau Stadtquartier Marienhöfe
Stahlbetonkonstruktionen, 15.000 m² BGF
- Position: Senior-Tragwerksplaner
- Leistungen: Erstellung der Genehmigungsstatiken Häuser 3 und 18
- Bauherr: RS GmbH & Co. Immobilien II KG
- Entwurf: Collignon Planung GmbH
2022 | Potsdam
Neubau eines Mehrfamilienhauses mit Tiefgarage
Mauerwerks- und Stahlbetonkonstruktion, 3.500 m² BGF
- Position: Tragwerksplanung und Projektleitung
- Leistungen: LPH 1–4
- Bauherr: B&B Immobilienverwaltung GmbH
- Entwurf: VOGEL CG ARCHITEKTEN
2021 | Hamburg
Aufstockung von Mehrfamilienhäusern
Stahltisch-Konstruktion mit Holzdecken auf Mikropfahl-Bock-Fundamenten, 3.000 m² BGF
- Position: Tragwerksplanung und Projektleitung
- Leistungen: LPH 1–3
- Bauherr: Versorgungskasse der Angestellten der Norddeutschen Affinerie VVaG
- Entwurf: Jung bauatelier GmbH & konzeptplan GmbH & Co. KG
2021 | Roggentin
Neubau eines Bürogebäudes
Stahlkonstruktion, 350 m² BGF
- Position: Tragwerksplanung und Projektleitung
- Leistungen: LPH 1–5
- Bauherr: IBE Mahnke Schaarschmidt GbR
- Entwurf: konzeptplan GmbH & Co.KG
2020 | Rostock
Neubau von 8 Mehrfamilienhäusern
Mauerwerks- und Stahlbetonkonstruktionen, 24.000 m² BGF
- Position: Tragwerksplaner
- Leistungen: Erstellung der Genehmigungsstatiken von 6 Gebäuden
- Bauherr: WIRO Wohnungsgesellschaft mbH
- Entwurf: Bastmann+Zavracky BDA Architekten GmbH
2019 | Berlin
Neubau eines Wissenschaftsgebäudes
Stahlbetonkonstruktion, 4.800 m² BGF
- Position: Tragwerksplaner
- Leistungen: Erstellung der Genehmigungsstatik
- Bauherr: Leibniz-Institut/Freie Universität Berlin
- Entwurf: Glass Kramer Löbbert - Gesellschaft von Architekten mbH
2019 | Oerlinghausen
Neubau einer Grundschule
Stahlbetonkonstruktion, 5.600 m² BGF
- Position: Tragwerksplaner
- Leistungen: Erstellung der Genehmigungsstatik
- Bauherr: Stadt Oerlinghausen
- Entwurf: h.s.d. architekten
2019 | Staußberg
Neubau einer Kindernachsorgeklinik
Mauerwerks- und Stahlbetonkonstruktion, Holzbau-Pfettendach, 4.700 m² BGF
- Position: Tragwerksplaner
- Leistungen: Erstellung der Genehmigungsstatik des Bauteils BT3
- Bauherr: Peter und Ingeborg-Fritz-Stiftung für chronisch kranke Menschen
- Entwurf: Ganter Architekten
2019 | Podsdam
Neubau einer Villa
Mauerwerks- und Stahlbetonkonstruktion, 700 m² BGF
- Position: Tragwerksplaner
- Leistungen: LPH 1–4
- Bauherr: Privat
- Entwurf: Vogel CG Architekten
2019 | Berlin
Dachgeschossausbau Warthestraße
Neuerrichtung von Dachkonstruktion auf verstärkter Holzbalkendecke, 540 m² BGF
- Position: Tragwerksplaner
- Leistungen: LPH 3–5
- Bauherr: Privat
- Entwurf: Arno Weisheit
2018 | Berlin
Dachgeschossausbau Cantianstraße
Neuerrichtung von Dachkonstruktion auf verstärkter Holzbalkendecke, 900 m² BGF
- Position: Tragwerksplaner
- Leistungen: LPH 3–5
- Bauherr: Gaudy Berlin GmbH & Co KG
- Entwurf: Genthe Architektin